Digital Exclusive: Early collaboration with vendors: Mitigating design risk and ensuring successful project execution
B. S. YADAV and S. EKAMBARAM, Fluor, Gurgaon, Haryana, India
Establishing effective early-stage collaboration with vendors is essential for mitigating engineering risks, optimizing decision-making and achieving successful project execution in complex industrial projects. This article examines strategies and lessons learned from the execution of a hydrothermal cleanup unit (HCU) and associated evaporator package. It demonstrates how systematic vendor engagement enhanced material selection, system design and operational reliability, reinforcing the value of cross-functional coordination in the management of advanced process systems.
Scope. The HCU plays a foundational role in treating industrial feedstock, enabling the separation of oil, water and sludge. These processes require the handling of highly corrosive fluids, specialized materials and large-bore piping—each introducing unique engineering and operational challenges. This article outlines an approach centered on early vendor collaboration, focusing on risk identification and mitigation during the design, procurement and execution phases of the HCU and its evaporator package. The discussion covers key technical considerations such as pipeline flexibility, pressure drop constraints, and the incorporation of high-cost materials.
HCU: Process description. The HCU processes feedstock through hydrothermal treatment, facilitating phase separation into oil, water and sludge. Additives—including caustic and citric acid—are introduced to optimize reactions inside the reactor section. FIG. 1 depicts the detailed block flow diagram of a typical HCU process. Following separation, treated oil and recycled water are managed through dedicated systems, while sludge byproducts undergo safe storage or further treatment. The system employs chemical storage and clean-in-place modules to enhance reliability and minimize downtime.

FIG. 1. Block flow diagram of the HCU process.
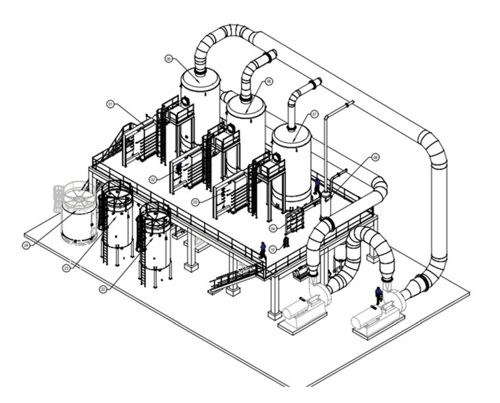
Evaporator package unit: Process description. The evaporator package (FIG. 2) depicts a simplified evaporation system designed to concentrate aqueous solutions by removing water in successive stages. The feed is first preheated through dedicated heat exchangers before entering the first effect, where partial vaporization takes place.

FIG. 2. Evaporator package.
Vapors generated in each stage are separated and reused as heating media for the following stage, which significantly improves thermal efficiency. A mechanical vapor recompression unit further enhances energy recovery by compressing and recycling vapor to provide heat for the first effect, thereby minimizing steam consumption. Each effect is equipped with recirculation pumps to maintain stable boiling and uniform concentration. Condensate from the process is collected, cooled and reused, while non-condensable gases are vented through a condenser. The final concentrated product is withdrawn using a product pump and transferred to downstream processing or storage. Flow control valves and level controllers ensure smooth, reliable and continuous operation of the entire system.
Design challenges. As the unit was being designed in a brownfield refinery, the available plot space was limited; therefore, proper planning on placing the HCU and evaporation package was critical. Moreover, the equipment sizes and pipe sizes were relatively large. TABLE 1 identifies the challenges associated with the project that were discussed during the initial engineering phase.

Key constraints included fitting large-bore piping into a compact brownfield area (approximately 40 m × 12 m), managing standard ISO pump nozzle loads, and designing piping systems (sizes 44"–24") with super duplex stainless steel and PTFE-lined carbon steel. Early stress analysis identified 20 critical locations for expansion joints, but available vendor catalogues lacked technical data for these large sizes.
FIG. 3 shows the sample preliminary layout for further studies.

Technical approach.
- Custom datasheets (FIG. 4) were provided to multiple vendors, specifying requirements that needed to be filled by expansion joint vendors (i.e., stiffness, actual overall length) based on layout limits. These yellow columns in FIG. 4 are vendor-fillable fields, meaning vendors must provide these details based on their design and manufacturing capabilities.

FIG. 4. View of a custom datasheet.
- Collaboration with metallurgists led to the adoption of Titanium Grade 1 bellows for PTFE-lined piping, mitigating reliability risks associated with PTFE coatings.
- Weekly teleconferences ensured ongoing vendor input, enabling timely design finalization and the alignment of structural drawings with project milestones.
Collaborative procurement and project timeline.
- Accelerated design feedback: Direct technical communication between engineers and vendors eliminated delays typical in formal request for proposal processes, enabling rapid design validation and vendor selection.
- Efficient procurement: Once requirements were finalized, formal procurement proceeded smoothly, achieving zero-revision drawing approvals and enabling immediate fabrication.
- Schedule adherence: Early vendor feedback allowed the integration of stress analysis results and structural load data into the CSA design, helping construction planners meet critical deadlines and keeping the project on schedule.
Key milestones.
- Initial model review and challenge identification
- Stress analysis and custom vendor engagement
- Design verification and vendor selection
- Structural drawing release and purchase order placement
- Fabrication and implementation.
Lessons learned.
- Early and structured vendor involvement saved design cycles, minimized risk and aligned project schedules.
- Engineers benefited from direct technical dialogue with vendors, supported by tailored datasheets and clear performance requirements.
- Proactive materials engineering (e.g., titanium bellows for PTFE piping) enhanced long-term reliability.
Takeaway. Early and systematic vendor involvement directly contributed to technical risk reduction, design optimization and project delivery efficiency. Integrating vendor expertise into pre-procurement engineering enabled more accurate analyses, minimized design iterations and ensured on-schedule execution. The lessons learned from the evaporator package project highlight the industry-wide value of collaborative engineering in delivering robust, high-reliability process systems.
ACKNOWLEDGEMENTS
The authors would like to express their gratitude to the P4 (Professional Publications and Presentation Program) committee of Fluor Corp. for their continued support. In addition, the authors are indebted to colleagues and functional heads at Fluor Corp. for their encouragement, guidance and support during the writing of this article. This article is developed with the permission of Fluor as part of the Fluor’s P4 Program. Note: the views expressed in this article may be directed at a large audience and may not be suitable for any particular client, project or situation. Fluor does not provide any warranties relating to the content of this article, and your use or reliance on it is at your own risk.
ABOUT THE AUTHORS
Bhupender Singh Yadav has 19 yrs experience in projects for petrochemicals, oil and gas, chemical, offshore and power generation industries. His experience includes detailed engineering, FEED, construction, field support, field assignments and positions as lead pipe stress engineer. He has experience providing solutions for stress critical systems connected to reactors, air coolers, compressors, turbines, fire heaters and lines subjected to AIV/FIV.
Sivakumar Ekambaram is a subject matter expert in piping stress analysis. He has > 22 yrs of experience in oil and gas, petrochemicals, chemicals and power generation industries. He has extensive experience with detailed engineering, design and construction, and has provided solutions for critical systems connected to compressors, turbines and reactors. He holds a supervisory position as a lead pipe stress engineer, and has also championed value engineering and identified cost-saving opportunities through his expert recommendations on piping designs.


Comments